中國凈化行業引導者!
138-1628-8164
解決方案
凈化工程案例
施工工藝
在線預約 EPC工程定制

專屬工程師,全程服務,為您規劃有關設計、材料、施工、設備的一切

我們擁有優秀的施工團隊,嚴格遵守國家各項標準

參考過往的工程案例,以豐富的經驗助您辦成“大事”
在線預約
現場勘察
方案臻選
簽訂合同
金牌施工
竣工驗收
享受保障
凈化工程案例

項目:無錫水質檢測實驗室 地點:江蘇省無錫市 面積:200㎡...

項目:昆山電子無塵車間 地點:江蘇省蘇州市昆山市 面積:2800㎡...

項目:南通醫院層流手術室設計施工 地點:江蘇省南通市 面積:220㎡...

項目:藥品檢測實驗室 地點:安徽省合肥市 面積:800㎡...

項目:研發中心實驗室 地點:上海市 面積:550㎡...

項目:上海浦東電子潔凈廠房 地點:上海市 面積:18000㎡...

項目:精密電子檢測實驗室 地點:北京市 面積:1150㎡...

項目:醫療器械GMP凈化車間 地點:上海市松江區 面積:8500㎡...
Purification engineering case
解決方案
施工工藝
construction technology
實地考察調研
方案設計規劃
施工圖紙繪制
工程進場施工
竣工驗收&質保
精工匠藝
匠人
匠心
匠品
匠魂
系統工程

現在工廠越來越多,其中很多工廠沒有環保意識,為了方便排泄方便,就把廢氣廢水不經過處理,就直接排泄出去...

壓縮空氣是指經壓縮后具有一定的空氣,它是一種由電能轉化而來的能源。由產生、處理和儲存壓縮空氣的設備所...

數據采集 收集各子系統的全網運行數據和運行狀態信息,以數據文件形式儲存在外存儲器里。 運行參數和狀態...

給排水系統是為人們的生活、生產和消防提供用水和排除廢水的設施總稱。 潔凈廠房車間內的生產工藝對環境有...

什么是凈化工程配套的電氣系統,電氣工程施工包含照明插座、動力配電等強電工程以及自控、網絡、電信、綜合...

特殊氣體是指那些在特定領域中應用的,對氣體有特殊要求的純氣,高純氣或由高純單質氣體配制的二元或多元混...

作為水源的城市自來水和天然水,這些水源的水質受自然界地理環境影響及人為的三廢排放污染的影響,往往含有...

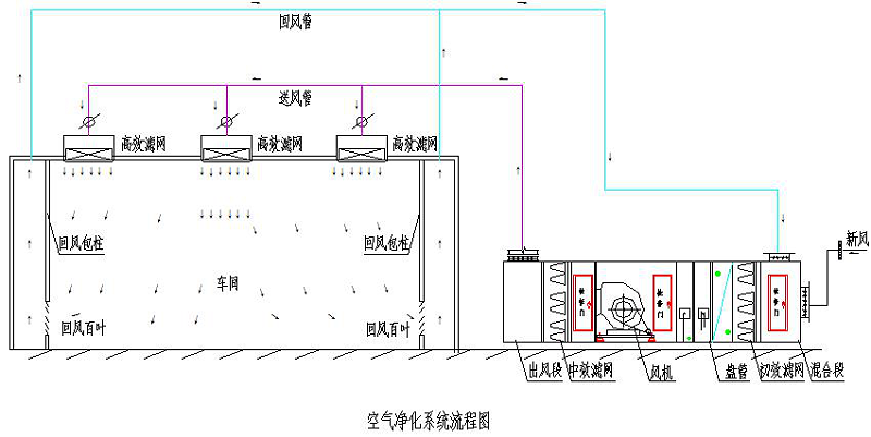
為了使潔凈室內保持所需要的溫度、 濕度等參數,最常用的方法是向室內不斷送入一定量經過處理的空氣,以消...

潔凈技術是從20世紀 60 年代在美國、歐洲等發達國家發展起來,最初主要應用在軍事方面,FS-209...

建筑裝飾系統是為保護建筑物的主體結構、完善建筑物的物理性能、使用功能和美化建筑物,的工程。采用裝飾裝...
Systems engineering









新聞資訊
2022
2022
2022
2022
2021
2022
2020
2020
2020
2020
ELABORATE CRAFT
匠人
匠心
匠品
匠魂
Time limited discount
截屏,微信識別二維碼
微信號:13816288164
(點擊微信號復制,添加好友)
打開微信
| 潍坊市 | 抚松县 | 二手房 | 东乡 | 颍上县 | 隆回县 |
| 吴江市 | 乌审旗 | 涪陵区 | 浮山县 | 鹤山市 | 盐城市 |
| 惠安县 | 贵南县 | 锦屏县 | 麻栗坡县 | 鹿泉市 | 华阴市 |
| 威海市 | 隆安县 | 阳城县 | 沾益县 | 含山县 | 呼和浩特市 |